El sitio está reservado para profesionales
  • 387651-a1
  • 387651-a2
  • 387652-a1

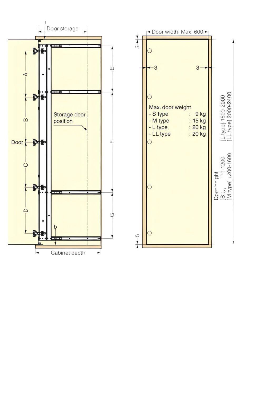
Carril para sistema ALT-ST20-D360

Desde: 33,06  + iva

Compra rápida

Imagen Ref. Profundidad del armario Precio Stock Comprar